结合设计感与舒适性,在配色上选择了较为柔和的色彩以避免视觉疲劳,装饰也删繁就简避免累赘,这就是来自云南丽江,一套极简现代风家居装修案例。设计师在材质上的用心,并不会觉得单调,反而将空间层次及设计质感诠释地恰到好处。在空间布局上,无论是客餐厅,还是主卧的套房设计也均是从“享受型住宅”出发,完美贴合空间主人生活习惯,区别于常见的材质,客厅背景墙设计师选择了深色生态木的装饰格栅板,为极简空间增添了不少现代的时尚气息,而线条感极强的生态木更是自带层次感,凸显了空间的设计感。

以白色为主的外墙彰显了极简现代的精髓。

极简现代主义设计注重造型和材质,以此打造简约却不简单的整体设计感官。

深色生态木装饰格栅板与留白的空间形成对比,为空间沉淀质感。

不同的质感与不同的高度差别,让空间更富层次感。

宽敞而简洁的家,让归家人的心,变得平和与舒缓。

绿植的装饰让餐厅空间富有生机而美好。

单纯的睡眠休息空间看起来简洁且干净利落。

悬吊的床头灯,自由且美丽。

原木色使空间展现出清新与爽朗。

适当且大胆的手法让整个空间的塑造和个性上的调整优化。

艺术化装饰品为冷静的空间带来一丝跳脱。

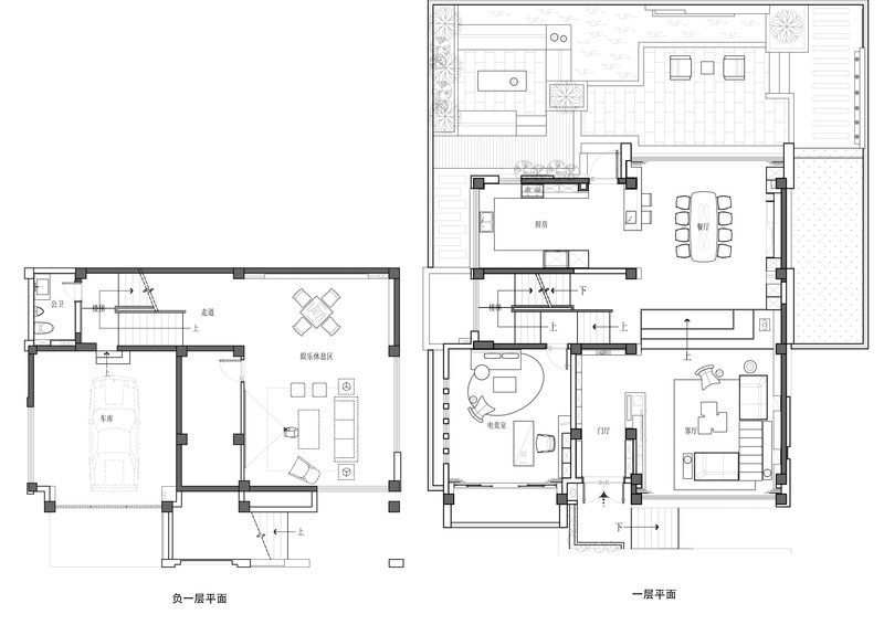
负一层、一层平面布置图

二层、三层平面布置图





