本项目位于云南昆明西山区融创文旅城,是一个现代中式风格精品酒店装修设计案例,酒店坐紧邻时尚与文化兼具的核心商圈,是云南昆明加速发展新型文旅产业的重要布局。巧思的设计手法通过现代中式元素间的相互作用,渲染尊贵而神秘的空间意境,打造一座融汇古典文化意韵与现代艺术美学的精品星级酒店,整体空间采用现代艺术演绎传统古韵,将寓意丰富的东方文化元素,以不同形式呈现于空间之中,构造高级典雅气韵,让宾客在游走之间,体验“发现、探索”的乐趣。

昆明西山区现代中式风格精品酒店—▲门厅展示

昆明西山区现代中式风格精品酒店—▲门厅空间长虹玻璃(压花玻璃)隔断

昆明西山区现代中式风格精品酒店—▲门厅光影效果

昆明西山区现代中式风格精品酒店—▲大堂

昆明西山区现代中式风格精品酒店—▲大堂服务区

昆明西山区现代中式风格精品酒店—▲前台细节

昆明西山区现代中式风格精品酒店—▲休息区域

昆明西山区现代中式风格精品酒店—▲过道空间

昆明西山区现代中式风格精品酒店—▲客房走廊

昆明西山区现代中式风格精品酒店—▲客房入口处

昆明西山区现代中式风格精品酒店—▲客房空间

昆明西山区现代中式风格精品酒店—▲双人客房空间

昆明西山区现代中式风格精品酒店—▲双人客房床头背景

昆明西山区现代中式风格精品酒店—▲双人客房空间调性

昆明西山区现代中式风格精品酒店—▲客房装饰细节

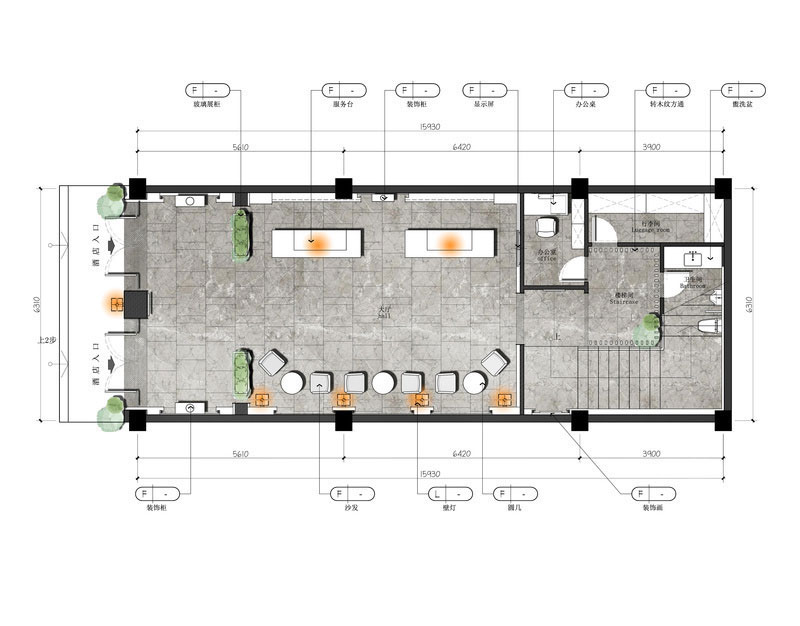
昆明西山区现代中式风格精品酒店—▲一层平面布置图

昆明西山区现代中式风格精品酒店—▲二层平面布置图






